Beschreibung
Back to nature – modern interpretiert
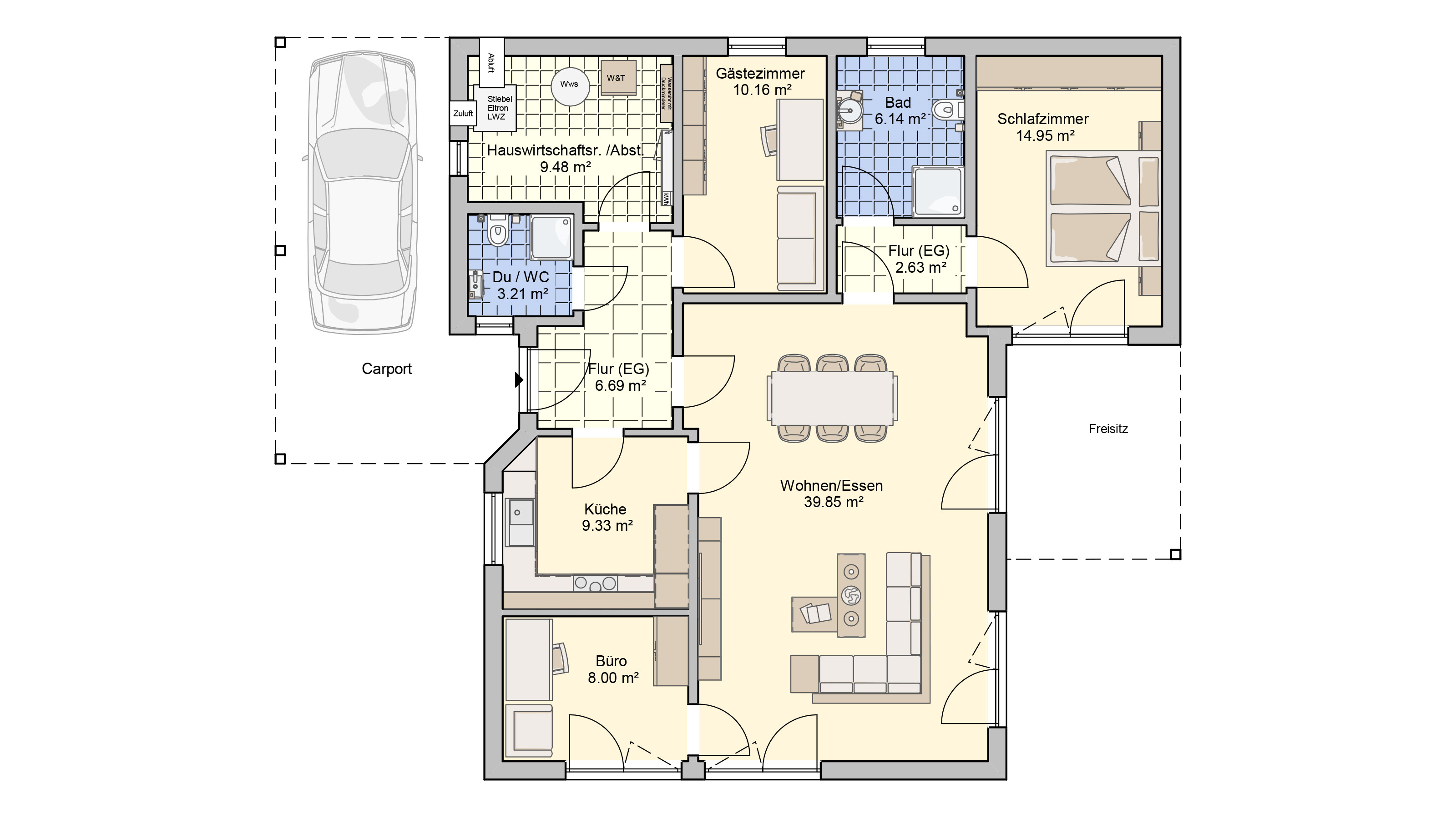
Die Natur zum Greifen nah: So sitzen Hausherren und Gäste bei strahlendem Sonnenschein, aber auch in der Winterlandschaft im geschützten vollverglasten Freisitz des Bungalows Suno. Der raffinierte Anbau vermittelt nahtlose Verbundenheit zur Natur. Gleichzeitig gestalten sich die gesamte Architektur und das Wohnkonzept des Fingerhut Hauses bis ins kleinste Detail hochmodern.
Der offene Wohncharakter zieht sich wie ein roter Faden vom Speisezimmer bis ins Schlafzimmer des Hauses. Der durchgängige Wohn- und Essbereich zeigt sich dabei hell, freundlich und einladend – insbesondere durch die bodentiefen Fenster, die zusätzlich einen grenzenlosen Blick in die Ferne freigeben.
Abends können die Bewohner und Gäste den Tag zu jeder Jahreszeit nahezu im „Freien“ mit einem Glas Wein ausklingen lassen – das erlaubt der vollverglaste Freisitz, der Zutritt vom Schlafraum sowie aus dem Wohn- und Essbereich gewährt.
Ob als Alterswohnsitz oder für die Familie mit Kind: Der moderne Bungalow bildet die perfekte Symbiose aus Individualität und Funktionalität – angepasst an die Bedürfnisse der jeweiligen Generationen.








