Beschreibung
Abenteuer Selbstbau
Aus Bolivien, umgeben von Dschungel, zogen die Emberts ins Zentrum Berlins. Schon bald wurde ihnen der Großstadttrubel zu viel und so machten sie sich im Berliner Umland auf die Suche nach einem Grundstück mit viel Natur. Um sich den Traum von einem Eigenheim leisten zu können, entschieden sie sich für das Abenteuer, ihr Haus in Eigenleistung zu bauen …
Für das Ehepaar Embert änderte sich vieles mit dem Umzug nach Deutschland. Den größten Kontrast bildete die urbane Berliner Innenstadt zur üppigen Natur des südamerikanischen Dschungels. „Das war ein ziemlich krasser Schnitt in meinem Leben“, erzählt der Biologe. Zunächst genossen die Emberts das Stadtleben in vollen Zügen, doch bald erwachte die Sehnsucht nach einem Haus in ruhiger Gegend, umgeben von Wald und mit Wasserzugang. Das junge Ehepaar fürchtete, dass solch ein Grundstück nahe Berlins schwer zu finden sein würde und tatsächlich dauerte es etwa eineinhalb Jahre, bis Dirk Embert ein verwildertes Stück Land mit See vor den Toren der Hauptstadt entdeckte. Er erwarb es nach Absprache mit seiner Frau, die seinem Urteil vertraute, ohne das Bauland selbst gesehen zu haben.
„Das war ein Dschungel! Zwei Meter hohe Brennnesseln! Wir konnten es zunächst gar nicht betreten!“, berichtet Ehefrau Pamela von ihrem anfänglichen Schock, als sie das Grundstück zum ersten Mal erblickte. Auch sie erkannte jedoch bald das Potenzial des 7.500 Quadratmeter großen Areals. Ein Teil davon gehörte zu einem Landschaftsschutzgebiet und bot die verlockende Möglichkeit, sich mit nahezu unberührter Natur zu umgeben. Somit nahmen die Emberts die Herausforderung Hausbau an und begaben sich auf die Suche nach dem passenden Baupartner. Ihre Wahl fiel auf Ytong Bausatzhaus. Dieser überzeugte mit einem Konzept, bei dem die Bauherren durch Eigenleistung bis zu 60 000 Euro beim Bau des Hauses sparen können. „Wenn die Eigenleistung nicht für den Bankkredit angerechnet worden wäre, hätten wir die Finanzierung nicht bekommen und wir hätten uns dieses Haus nicht leisten können“, begründet das Ehepaar die Entscheidung.
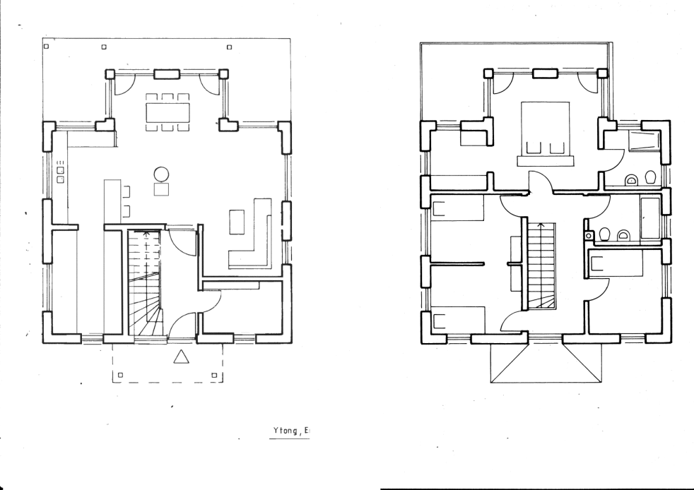
Im nächsten Schritt widmeten sich die Emberts der individuellen Planung. Als Grundlage diente eine Stadtvilla von Ytong Bausatzhaus, die ihrer Vorstellung mit großen Räumen und offener Küche gerecht wurde. „Was wir wollten, ließ sich auf einen kurzen Nenner bringen“, fasst Dirk Embert zusammen, „so wenig Mauern wie nötig und so viele große Fenster wie möglich.“ Das Herzstück des quadratischen Grundrisses bildet im Erdgeschoss der ineinander übergehende Koch-Ess- Wohnbereich. Der Erker öffnet diesen zum Garten und bietet einen herrlichen Ausblick ins Grüne. Darum herum angeordnete Fenstertüren sorgen für reichlich Lichteinfall.
Eine Treppe aus dem Flur führt ins Obergeschoss. Dort befindet sich das Schlafzimmer der Eltern mit dem Erker, über den der Balkon betreten werden kann. Kinderzimmer und ein zusätzlicher Raum, der flexibel als Kinder- oder Gästezimmer genutzt werden kann, ergänzen das Ensemble.
An welche Bauschritte das Ehepaar selbst Hand anlegen würde, entschied sich nach einer Beratung mit ihrem Baupartner. Den gesamten Rohbau, einen Teil des Innenausbaus, die Verschalung und Betonierung der Bodenplatte wagten die Emberts in Eigenleistung zu übernehmen. Fachkräften überließen sie hingegen Estrich, Elektrik, Wasser- und Sanitärinstallation sowie die Installation des Smarthome-Systems.
Bevor es losgehen konnte, sollte das Grundstück vorbereitet werden. „Das war ungeheuer viel Arbeit!“, berichtet Dirk Embert. Unter anderem mussten über 70 Zpressen gefällt werden, um Platz für das Haus zu schaffen. Das Holz wurde für Treppe und Fensterbänke verwertet und mit dem, was übrig blieb, heizt die Familie bis heute im Kamin.
Nach dem Errichten der Bodenplatte kam der Vorführmeister des Ytong Bausatzhaus Partners, um alle Schritte des Mauerns zu erklären. Er begleitete die Emberts auch nach Beginn der Arbeiten durch den Prozess, erschien regelmäßig auf der Baustelle, veranlasste die Lieferung der Materialien und stellte benötigte Werkzeuge sowie Maschinen. „Es sieht aus wie Lego und es war auch tatsächlich so einfach wie Lego“, erinnert sich der Bauherr, der zuvor noch nie gemauert hatte, an das Hantieren mit den großformatigen Steinen des Ytong Porenbetons.
Um täglich auf der Baustelle sein zu können, mieteten sich die Emberts in der leerstehenden Wohnung ihrer Nachbarn ein. Das Nützliche kombinierten sie mit dem Schönen, indem ihnen auch zahlreiche Freunde zu Hilfe kamen. Bis zu 15 Personen packten auf dem Bau mit an. „Die haben dann ihre Zelte aufgeschlagen. Tagsüber wurde gebaut, abends gegrillt. Und zwischendurch ein erfrischendes Bad im See genommen“, erzählt Dirk Embert. Gemauert wurde in Begleitung lateinamerikanischer Musik und „sozusagen im Akkord“. Jeder übernahm eine Teilaufgabe, z. B. das Anmischen des Mörtels oder das Setzen der Steine.
Mit der Unterstützung ihrer Freunde konnten die Emberts bereits eineinhalb Jahre nach Beginn der Bauarbeiten ihre zweigeschossige Stadtvilla im südamerikanischen Stil beziehen. Die gesamten Baukosten betragen nach Angaben des Ytong Bausatzhaus Partners circa 250 000 Euro, Grundstück und Außenanlagen nicht inbegriffen. Beachtliche 60 000 Euro hat das Ehepaar gespart, indem es die Ärmel hochgekrempelt und Eigenleistung erbracht hat. Das Ergebnis ist ein lichtdurchflutetes Eigenheim, umringt von grüner Idylle.















