Beschreibung
Seit Anfang 2024 auf dem Markt, greift OPTION den Trend zu Minimalismus und Downsizing auf: Für Singles, Paare, Best Ager oder kreative Köpfe mit Lust auf alternative Wohnformen. Alle drei Ausstellungshäuser basieren auf der Baureihe OPTION, setzen aber unterschiedliche Schwerpunkte: Das Spektrum reicht vom kompakten Bungalow mit rund 53 m² über das zweigeschossige Minihaus mit 70 m² bis hin zur großzügigeren Variante mit Anbaumodul und rund 90 m² Wohnfläche. Jedes Haus bringt einen eigenen Stil und Charakter mit – von klassisch-elegant bis kreativ-unkonventionell.
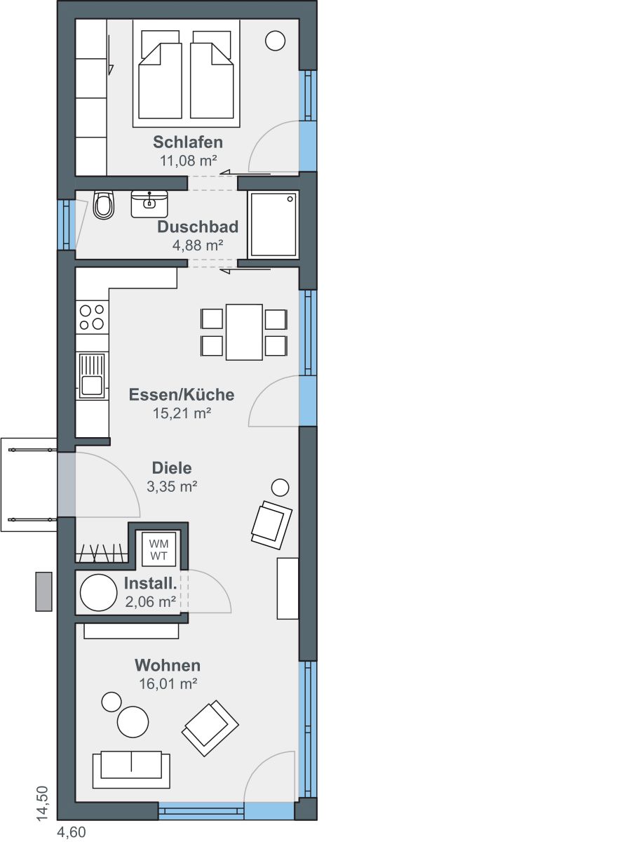
Option 1 mit 53 qm
Der Bungalow ist ist sowohl geeignet für Singles als auch Paare und setzt auf klassische Eleganz und Funktionalität. Von außen präsentiert sich der barrierearme Bungalow als moderner Quader mit eleganter graue Putzfassade, mittig aufgesetztem Satteldach und sechs großen Dachfenstern. Verkehrswege wurden auf ein Minimum reduziert. Das Interieur zeigt sich in klassischer Eleganz. Der Fokus liegt dabei auf gedeckten Farbtönen wie Beige, Dunkelgrün, Bordeaux und Marineblau in hochwertigen und langlebigen Materialien.
In diesem offen gestalteten Minihaus findet das Wohnen auf einer Ebene statt. Der Eingangsbereich verfügt über eine 3 m2 große Diele mit Garderobe, links davon befinden sich Küche und Essbereich. Daran angeschlossen ist das Durchgangsbad, über welches man zum Schlafzimmer gelangt. Am anderen Ende der Wohnung liegt der großzügige Wohnbereich, der durch den Technikraum zum Eingang abgetrennt ist.
- Fokus auf Ordnung, Luxuriöse Akzente (Naturstein etc)
- Außenmaße: 4,60 x 14,50
- Wohnfläche 52,74 qm
Option 2 mit 70 qm
Die graue Holzfassade verleiht Minihaus Nummer 2 eine besondere Naturverbundenheit. Die großzügigen Fenster auf beiden Ebenen versorgen die Innenräume mit genügend Tageslicht. Außen befindet sich ein Carport mit praktischem Abstellraum. Der skandinavische Minimalismus prägt den Wohnstil, während natürliche Materialien, DIY-Objekte und Pflanzen eine individuelle und ökologische Wohnatmosphäre schaffen.
Im unteren Bereich geht es von der Diele rechts in die Küche mit Essbereich. Auf der linken Seite befindet sich der Wohnbereich. Gleich neben der Diele liegt zudem der Technikraum. Vom Wohnbereich führt eine Treppe ins zweite Stockwerk und hier geradewegs ins Schlafzimmer. Direkt daneben befindet sich das Badezimmer und im hinteren Bereich ein zusätzlicher Raum, der als Arbeitszimmer genutzt werden kann.
- Nachhaltig ökologisch, skandinavisch minimalistisch
- Außenmaße 11,20 x 4,60 m Breite plus Carport (plus 4,60) ist 9,20 M
- Erdgeschoss: 37,32 m²
- Obergeschoss: 34,10 m²
- Wohnfläche ges.: 71,42 m²
Option 3 mit 90 qm
Minihaus Nummer 3 richtet sich an eine jüngere Zielgruppe und zeigt, wie unkonventionelles, flexibles und hippes Wohnen geht, inklusive genügend Freiräumen für kreatives Gestalten. Das spiegelt sich nicht nur in der Einrichtung wider, sondern auch in der Aufteilung des Grundrisses: denn der Anbau lässt vielfältige Nutzungsmöglichkeiten zu. Offene Regale, Vintage-Möbel und kreative Kunstwerke unterstreichen den unkonventionellen Wohnstil in dem Ausstellungshaus. Im Obergeschoss finden die privaten Ruheräume mit einem Bad sowie einem hellen Homeoffice Platz.
- Vintage und industiral Style, Designobjekte
- Außenmaße: 11,20 x 9,20 , schmaler Flügel 4,60 m
- Erdgeschoss: 55,15 m²
- Obergeschoss: 34,10 m²
- Wohnfläche ges.: 89,25 m²
Preisinfo
Der Bungalow mit Flachdach ist ab 189.000 Euro erhältlich, während das OPTION mit zwei Vollgeschossen bei 249.000 Euro und mit Anbaumodul bei 289.500 Euro startet, jeweils in der Ausbaustufe „Bad komplett“ ínklusive hochwertiger Ausstattung bis hin zu Glasbrüstungen vor den bodentiefen Fenstern im OG.
























