Beschreibung
Aktionshaus im Landhausstil
Beim Bau ihres Eigenheims konnte sich das Ehepaar Moser davon überzeugen, dass auch ein Aktionshaus viel Gestaltungsfreiheit bietet. Ihre Vorstellungen konnte die Bauherrin wie gewünscht umsetzen: Landhaustreppe, Sitzfenster, Holzoptik. Vorgegeben war nur der Grundriss. Und der passte perfekt zu den Wohnvorstellungen von einem dezenten Landhausstil mit Mix aus Bayern und Skandinavien.
Verwirklichen konnte das Paar sein Traumhaus auf dem Familiengrundstück in Oberbayern. Beim Bau nutzten sie das Schwörer-Aktionshausprogramm. Das Moser-Haus präsentiert sich als Satteldachklassiker mit leichtem Dachüberstand und sichtbaren Pfettenköpfen sowie einer anthrazitfarbenen Teilholzfassade. Die Fenster wurden modern gestaltet, auf Fensterläden wurde verzichtet. Einen Kontrast setzt die hölzerne Eingangsüberdachung, die einen schwedischen Touch verleiht.
Bei der Innengestaltung fokussierte sich die Bauherrin auf Holzelemente und die Farbe Weiß. Dieser harmonische Mix zieht sich durch alle Bereichen: Böden, Wandbeläge, Fließen, Türen, Einbaumöbel etc. Einzige Ausnahme: Das Schlafzimmer. Hier wählte die Bauherrin eine blau-lila Tapete, dunkle Schränke und durchbrach damit das übrige Farb- und Materialkonzept.
Das Raumprogramm ist kompakt und clever zugleich. In der großzügigen Diele fällt der Blick direkt auf die markante Landhaustreppe, die ins Obergeschoss führt. Im Erdgeschoss befindet sich zudem die Küche in U-Form mit angeschlossener Speisekammer. Für besonders viel Tageslicht bei der Küchenarbeit sorgt das schmale Fenster im Querformat direkt über der Arbeitsplatte hinter der Spüle in der Küche. Der Wohn-Essbereich erstreckt sich über den gesamten Südbereich. Über eine breite Terrassentüre gelangt man in den Garten.
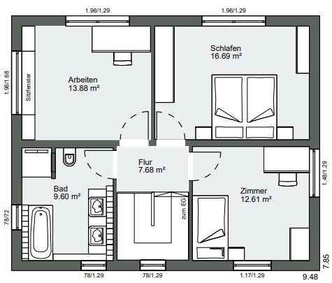
Ein Sitzfenster erweitert den Wohnbereich und ermöglicht den direkten Blick ins Grüne. Sitzfenster gibt es gleich zwei im Haus: einmal im Wohnbereich und einmal im Arbeitszimmer. Bei beiden hat die Schwörer-Designschreinerei maßgefertigten Stauraum drumherum integriert: Bücherregale im Wohnbereich und Einbauschränke im Arbeitszimmer.
Das Raumprogramm im Obergeschoss ist klassisch: zwei Privatzimmer für Eltern und Kind. Ein dritter Raum dient als Arbeitszimmer bzw. Gästezimmer. Dazu ein Badezimmer mit Badewanne. Zum Haus gehört darüber hinaus ein Keller, in dem der Technikraum untergebracht ist.














