Beschreibung
Dieses Mehrgenerationenhaus, gebaut auf einer Anhöhe, vereint individuelle und durchdachte Planung mit hoher Bauqualität. Dabei wurden für die große Baufamilie – bestehend aus drei Generationen – zwei Baustile und Lebensabschnitte geschickt miteinander vereint.
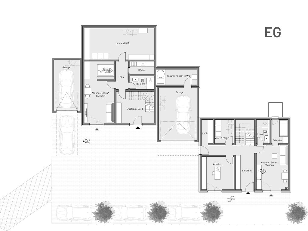
Kubus Hausaufbau
Das Mehrgenerationenhaus Calw steht hoch oben auf einer Anhöhe mit gepflasterter Zufahrt, um eine bequeme Einfahrt in die beiden Garagen zu ermöglichen.
Der linke Teil wurde im modernen Bauhausstil mit Garage gebaut. Der Nebeneingang führt hier direkt in eine schnuckelige Einliegerwohnung mit ausreichend Platz für einen offenen Schlaf-/Wohnraum, der in einen kleinen Flur führt. Nach links kommt man direkt in einen großzügigen Abstellraum mit HWR. Geradeaus liegt eine geschlossene Küchenzeile, die mit einer Schiebetür ausgestattet wurde, um Platz zu sparen, sowie ein Duschbad.
Der Haupteingang des Bauhauses hat einen großen Eingangsbereich mit Garderobe und Stahlwangentreppe aus Wildeiche, die direkt ins Gartengeschoss führt.
Das besonders Schöne an der Hanglage ist, dass beim Bau darauf geachtet werden konnte, Natur mit Architektur zu verbinden. Von der Treppe aus geht es links direkt in eine offene L-Küche mit großzügiger Speisekammer. Dank maßgenauer Planung verläuft die Küchenzeile in die Fensterlaibung, womit mehr Platz zum Kochen zur Verfügung steht. Das große Fenster bietet zudem einen wundervollen Ausblick über die Landschaft Calws.
Der offene Essbereich bietet zu beiden Seiten bodentiefe Fenstertüren, wovon die neben der Küche mit französischen Balkonen aus Glas gesichert wurden, um den herrlichen Ausblick uneingeschränkt genießen zu können. Die Türen links vom Essbereich führen direkt auf die große Steinterrasse. Besonders praktisch ist die direkte Nähe zwischen Ess-/Küchenbereich. So können die Bauherren jederzeit wieder ins Innere gelangen oder im Sommer Speisen ohne lange Wege nach draußen bringen.
Der Wohnbereich – obwohl offen zum Essbereich – wurde geschickt mit einer Wand zum Flur abgetrennt, um für mehr Privatsphäre zu sorgen.
Rechts von der Treppe geht es weiter in ein separates WC, das neben dem Hauptbad mit Wanne liegt. Dahinter wiederum befinden sich die Schlafräume. Ganz links ein großzügiges Gästezimmer mit direktem Zugang zur Gartenterrasse. Daneben eine Ankleide mit Abstellfunktion und Fenster für natürliches Licht. Rechts daneben das Schlafzimmer, das ebenfalls einen direkten Zugang auf die Gartenterrasse bietet.
Da die Anhöhe nach dem Garten noch weiter geht, wurde hier mit Betonplatten gearbeitet, die die Böschung stabil und stufenförmig zurückhalten. So konnte viel des natürlichen Grundes inklusive der Natursteine und Pflanzen erhalten werden.
Hausaufbau des Satteldachhauses
Der rechte Hausteil für die zweiten Bauherren verfügt ebenfalls über eine verbundene Garage mit separatem Technikraum. Durch den baugleichen Stil der Garagen fügt sich das Satteldachhaus elegant an die andere Seite.
Ein gepflasterter Weg führt zum Eingangsbereich, der durch die erhaltenen Stauden der Anhöhe Besucher willkommen heißt. Hier führt der Eingang direkt ins Hausinnere, wobei sich diesmal rechts eine praktische Einliegerwohnung befindet. Diese besteht aus einem großen, offenen Wohn-/Ess-/Kochbereich sowie einem Duschbad und einem separaten Schlafraum.
Vom Flur aus links gesehen kommt man zur Garderobe, einem großzügigen HWR und Abstellraum sowie einem großen Arbeitszimmer mit bodentiefem Fenster. Geradeaus befindet sich eine moderne, gewendelte U-Treppe mit Echtholz, die direkt ins Gartengeschoss führt.
Links von der Treppe finden sich im Gartengeschoss ein großer HWR sowie ein großzügiges WC.
Geradeaus findet man sich direkt im offenen Wohnraum mit moderner Küche mit Kücheninsel wieder. Zwei Lichtbänder im Küchen- und Essbereich sorgen für eine große, natürliche Lichtausbeute sowie einen wundervollen Ausblick in die Natur während des Kochens und Abspülens. Ein großes, bodentiefes Eckfenster sowie ein parallel davon installiertes bodentiefes Doppelfenster sorgen zusätzlich für viel Weite im offenen Wohnkonzept. Für wohlige Wärme sorgt ein Kamin zwischen Ess-/ und Wohnbereich. Von diesem führt eine doppelte Terrassentür auf die große Dachterrasse über der Garage.
Im Dachgeschoss finden sich rechts von der Treppe die beiden gleichgroßen Kinderzimmer mit jeweils bodentiefen Flügelfenstern, die mit aus Glas gefertigten französischen Balkonen gesichert wurden und einen ebenfalls traumhaften Ausblick bieten. Links befindet sich das große Schlafzimmer mit inkludierter Ankleide, die mit einer Trennwand vom Schlafbereich abgetrennt wurde. Daneben liegt das große Badezimmer mit freistehender Wanne, bodengleicher Dusche und Doppelwaschtisch.
Das Highlight im Dachgeschoss ist die große Galerie, die mit einem bodentiefen Panoramafenster zum Verweilen einlädt. Durch die Ausrichtung nach Süd/Ost können die Bauherren hier wundervoll den Sonnenaufgang bewundern.
Effizienz und Technik
Der Kubus sowie das das Satteldachhaus wurden ausgestattet mit je einer Sole-Wärmepumpe und kontrollierter Lüftungsanlage. Außerdem verfügen beide Häuser auf allen Ebenen über eine moderne Fußbodenheizung für stets warme Füße. Ein Kaminofen von Plewa sorgt zusätzlich im Satteldachhaus für kuschelige Stunden.
Das Massivhaus entspricht dem Standard Effizienzhaus 55.







