Beschreibung
Dieses Massivhaus im klassischen Stil mit Satteldach ist ein außergewöhnliches Hanghaus. Über der großen Doppelgarage liegt eine geräumige Terrasse in Südrichtung, die der Familie einen hervorragenden Blick über die weite Landschaft bietet. Optisches Highlight ist der farbig abgesetzte Erker mit Quergiebel an der Frontseite des Hauses.
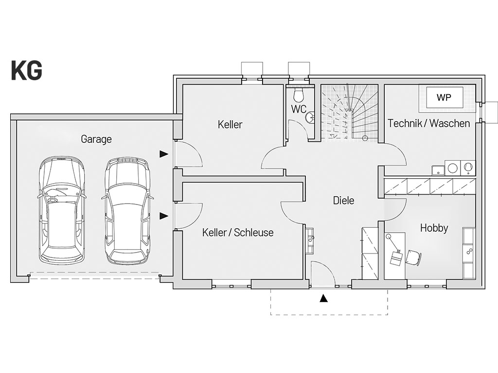
Untergeschoss
Der Eingang zum Haus liegt im Untergeschoss, von wo aus man über die großzügige Diele und die halbgewendelte Treppe in den Wohnbereich gelangt. Im Untergeschoss befindet sich ein großzügiger Hobbyraum mit Tageslicht. Der Technikraum wird als zusätzlicher Waschraum genutzt und zwei separate Kellerräume dienen der Familie als sogenannte Schmutzschleuse zur Garage, können aber gleichzeitig als separate Abstell- und Lagerräume genutzt werden. Perfekt, um unter anderem auch Getränke ganzjährig kühl zu lagern. Ein kleines WC ist ebenfalls vorhanden.
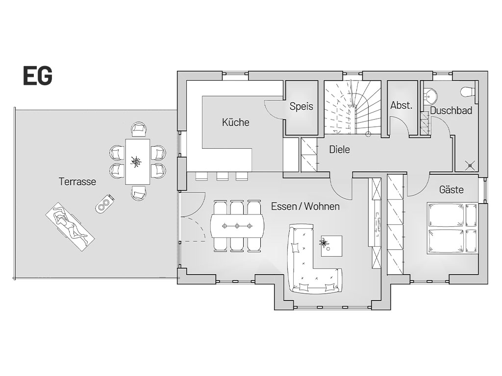
Erdgeschoss
Das lichtdurchflutete Erdgeschoss wird dominiert vom großen Ess-/Wohnbereich, der mit der offenen Küche verbunden ist. Optische Trennung gibt ein Schiebeelement, das parallel zur Küchentheke liegt. Hier kann die Familie gemütlich frühstücken. Angrenzend an die große Küche befindet sich eine praktische Speisekammer. Ebenfalls im Erdgeschoss das Gästezimmer mit daneben liegendem, großem Duschbad.
Dachgeschoss
Im Dachgeschoss befinden sich zwei große Kinderzimmer mit bodentiefen Fensterelementen sowie das Elternschlafzimmer mit separater, geräumiger Ankleide. Das großzügige Familienbad verfügt über Badewanne, bodengleiche Dusche und baulich abgesetztes WC. Perfekt für den täglichen Komfort.
Technik und Effizienz
Die technische Ausstattung dieses Hanghauses umfasst eine Luft/Wasser-Wärmepumpe sowie eine Photovoltaikanlage mit Batteriespeicher im Technikraum. Das Hanghaus entspricht einem Effizienzhaus 55.
Modernste Hanghaus-Architektur
Das klassische Hanghaus vereint zeitlose Architektur mit effizienter Haustechnik und einem großzügigen Raumangebot über drei Ebenen. Perfekt auf die Hanglage abgestimmt, bietet es modernen Wohnkomfort.






