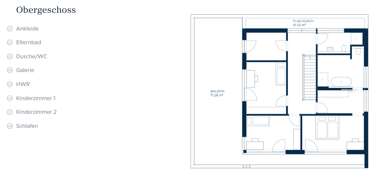
Beschreibung
Klare Linien mit viel Raum.
Concept 4 ist Architektur, die Weite schafft – mit klaren Linien, starker Geometrie und überraschend viel Raum zum Leben. Reduzierte Formensprache trifft durchdachte Details – vom flachen Walmdach bis zum großzügigen Balkon im Obergeschoss. Concept 4 ist kein Kompromiss. Es ist ein klares Ja zum Leben mit Anspruch




