Beschreibung
Das NEXT 175 kombiniert großzügigen Raum und moderne Architektur zu einem Zuhause, das sowohl funktional als auch stilvoll ist. Der moderne Look und die eleganten Details machen dieses Haus zu einem besonderen Ort, der durch seine Flexibilität und durchdachte Planung besticht.
Natürlich. Modern. Eindrucksvoll.
Die Außengestaltung beeindruckt mit einer markanten dunklen Holzverkleidung, die dem Gebäude eine moderne, aber gleichzeitig warme Ausstrahlung verleiht. Der großzügige Balkon im Obergeschoss verbindet alle Bereiche des Hauses und lädt ein, den Ausblick zu genießen. Die Terrassenüberdachung sorgt für zusätzlichen Komfort und schafft eine harmonische Verbindung von Innen und Außen.
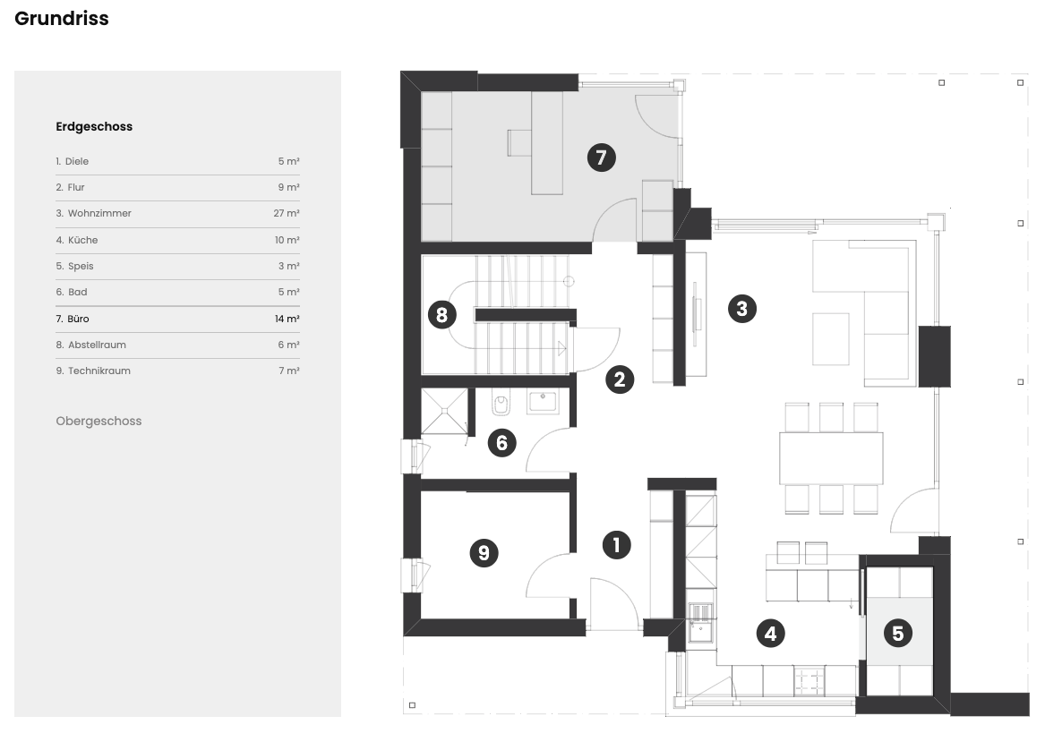
Raumkunst für jeden Tag
Der Wohnbereich ist großzügig und offen gestaltet, mit klaren Zonen, die Funktionalität und Komfort bieten. Die offene Küche mit praktischer Speisekammer sorgt für zusätzlichen Stauraum. Ein modernes Bad mit Dusche im Erdgeschoss erhöht den Komfort, während zusätzlicher Stauraum unter der Treppe eine praktische Lösung für das Leben ohne Keller bietet. Der Grundriss bietet die Möglichkeit, bis zu fünf Zimmer an verschiedenen Positionen zu integrieren, sodass jedes Familienmitglied seinen idealen Raum findet.




