Beschreibung
Kompaktes Wohnen mit luxuriösem Flair
Ihr Traumhaus beginnt hier
Von flexiblen Grundrissen bis hin zu individuellem Design - wir machen es Ihnen leicht, ein Haus zu bauen, das Ihnen entspricht. Egal, ob Sie die volle Kontrolle über Ihr Haus haben möchten oder einen Raum, den Sie sofort genießen können - Ihr perfekter Startpunkt ist nur einen Schritt entfernt.
Technische Daten TR 02
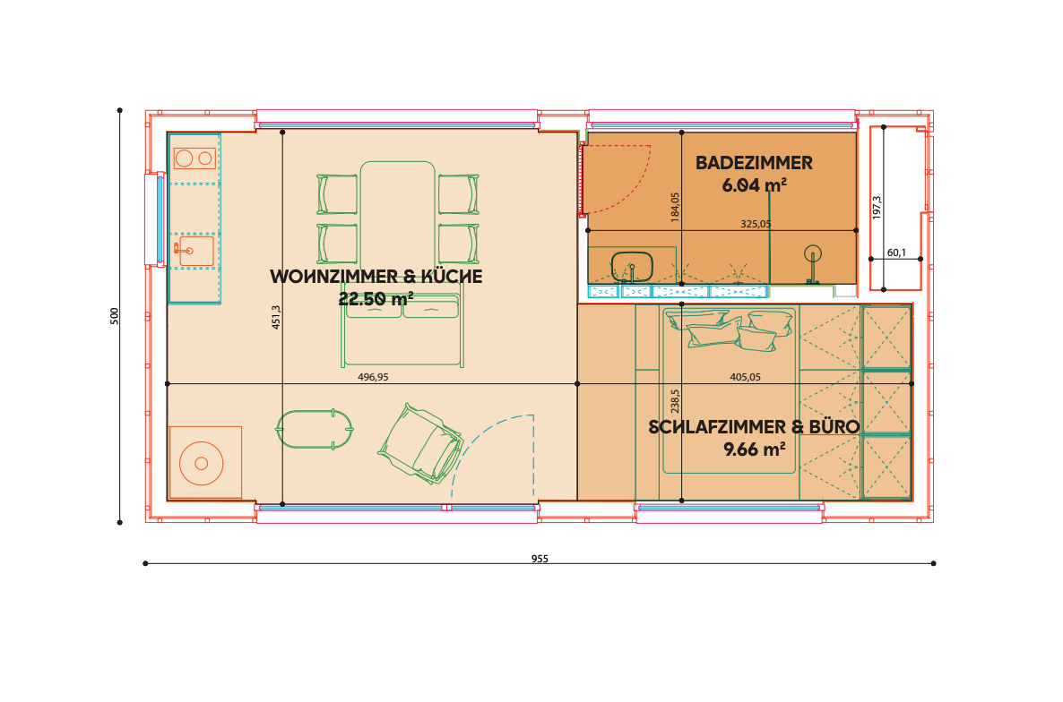
- Grundfläche von 48m² für effizientes und komfortables Wohnen.
- Möglichkeit zur Verbindung von Smart-Home-Systemen für ein integriertes Erlebnis
- Modulare Konstruktion, einfach zu transportieren und in 24 Stunden aufzubauen zu installieren
- Kontrollierte Be- und Entlüftung mit Wärmerückgewinnung
- Hochwertiges Bad mit Oberlicht und einer geräumigen Dusche
- Dachabdichtung mit ultra-resistenter FPO Sika-Membran
- Wirksame Wärmedämmung mit 15 und 30 cm Rockwool Basaltwolle.
- Möglichkeit zum Einbau eines Holzkamins
- Hinterlüftete Fassade aus thermisch behandeltem Kiefernholz von Lunawood
- Optional: Vollständige Möblierung in bester handwerklicher Qualität
- Feuerfeste Elektroinstallationskästen und Kabel, Fehlerstrom- und Lichtbogen-Schutzschalter gemäß VDE.
- Extrem widerstandsfähig gegen Feuchtigkeit, Schmutz und Abnutzung sind Hartholzböden aus Terhurne oder Dreischicht-Eichenparkett.












