Beschreibung
Minimalismus trifft Nachhaltigkeit
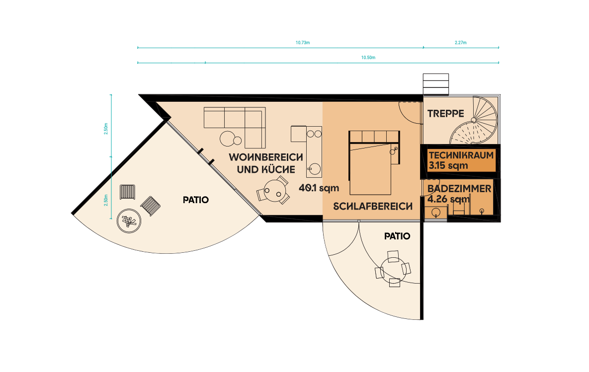
Das Modulhaus DWELLII SL verkörpert moderne Architektur und Wohnkomfort auf kleinem Raum auf beeindruckende Weise. Entworfen von dem angesehenen Architekten Sigurd Larsen , besticht dieses Haus durch markante Winkel, eine schattenspendende Dachterrasse über die komplette Hausfläche und die Möglichkeit, es vollständig mit Toren zu sichern – ideal für die Privatsphäre und mehr Sicherheit.
Die moderne elektrische Fußbodenheizung sorgt für wohlige Wärme und ein gesundes Raumklima in der kalten Jahreszeit. Das großzügige Badezimmer, der gesonderte Technikraum und die Wendeltreppe zur Dachterrasse sind ebenso inklusive wie das dreilagige Eichenparkett und die Birkenmultiplex-Oberflächen für Wände und Möbel.
Mit diesem DWELLII Modulhaus wird aus purem Wohnen ein besseres Leben.
Technische Daten SL
- Aluminiumfenster mit Dreifachverglasung
- Kontrollierte Be- und Entlüftung mit Wärmerückgewinnung
- Hinterlüftete Fassade aus thermisch behandeltem Kiefernholz von Lunawood
- Schalldichter Technikraum mit separatem Eingang von außen
- Eichenparkett
- Kühl- und Heizsystem
- Fußbodenheizung
- Voll ausgestattetes Badezimmer mit ebenerdiger Dusche und Armaturen
- Wände mit 12 mm Birkensperrholz
- Kinetische Schalter







