Beschreibung
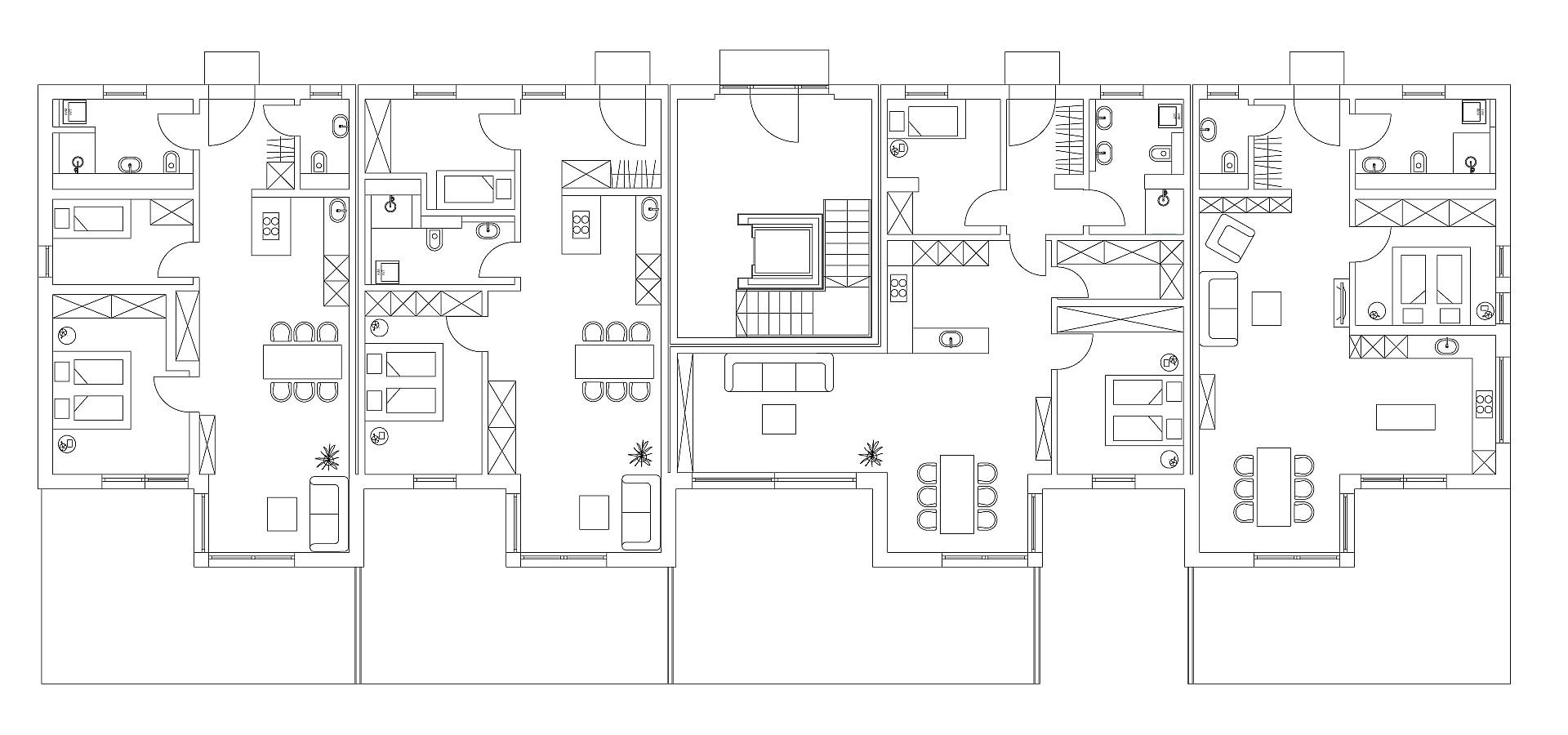
Das Mehrfamilienhaus besteht aus drei Stockwerken zuzüglich einem Kellergeschoss mit Tiefgarage mit insgesamt 10 Wohneinheiten. Das Satteldach mit Ziegeleindeckung ist mit zwei Flachdachgauben versehen - die Erdgeschoss-Wohnungen sind von außen zu begehen. Jeder Wohnungseingang ist mit einer Eingangsüberdachung aus Glas versehen und die Fenster neben den Haustüren sind mit einem Sichtschutz ausgestattet, indem senkrechte Latten der Holzschalung gestreift über die Fensteröffnungen laufen. In die darüber liegenden Wohneinheiten gelangt man über das mittig gelegene Treppenhaus. Auf der Südseite haben alle Erdgeschoss-Wohnungen große Terrassendecks, welche mit Lamellensichtschutzwänden zur Nachbarwohnung getrennt sind. Zweiflüglige Fenstertüren verbinden den Innenbereich mit dem großzügigen Außenbereich





