
Sommer in der Stadt, das war für die Jansens viele Jahre mit warmen Nächten und frühem Aufwachen verbunden. Trotz Klimaerwärmung angenehm wohnen, war deshalb Teil des Plans, als sich das passende Grundstück fand. Raus aus der Doppelhaushälfte mit der unzureichenden mineralischen Dämmung und als Alternative endlich die gewünschte patentierte Dämmung auf Holzspänebasis, die die Familie bei Besuchen der Baufritz-Manufaktur mit den Musterhäusern kennengelernt hatte. Denn von Saubermann-Image und Schummelei hatte die Familie genug, wie Bauherr Jansen klare Worte findet. Man hatte vieles verglichen und den schönen Schein hinterfragt: Manche Wände bestehen eigentlich einfach nur aus Polystyrol, hatte er erkannt. Nach zwei Anläufen wollte die Familie nun ein Haus ohne Kompromisse und Fehler planen und bauen lassen. Warum wohnen wie alle? Warum oben schlafen, wenn es unten doch kühler ist? Warum Terrasse unten, wenn der Weitblick doch oben stattfindet? Gewohnheiten wurden gründlich hinterfragt. Und: Man wollte ein Holzhaus bauen, auf jeden Fall.
Warum sollte man wohnen wie alle, hat man sich in der Familie Jansen nahe Berlin gefragt. Warum oben schlafen, wo man es doch nachts möglichst kühl haben möchte? Warum die Terrasse unten planen? Bei Familie Jansen befindet sie sich oben, mit Weitblick ins Grüne. Nach zwei Anläufen wollte die Familie einmal ein Haus ohne Kompromisse und Fehler planen und bauen lassen. Gut, dass sich nach über 20 Jahren und intensiver Suche das geeignete Grundstück gefunden hat, in dem stadtnahen Vorort, in dem die Familie bleiben wollte. „Wir haben jetzt ein Ganzjahres-Draußenzimmer, von März bis Oktober“, freut sich der Bauherr. Was von Beginn an klar war: „Wir wollten ein Holzhaus, auf jeden Fall.“ Nach sehr sorgfältiger Auswahl und Besichtigungen in verschiedenen Fertigungen hat die Familie gemeinsam die Entscheidung für Baufritz getroffen.

Das vorige Haus mit einer mineralischen Dämmung schien im Sommer unerträglich warm. Die patentierte Baufritz-Holzspänedämmung hat die Jansens überzeugt. Und: „Das sind einfach coole Häuser!“ Auf dem Weg von Norden in Richtung Skiurlaub hatte die Familie mehrfach einen Zwischenstopp in den Musterhäusern am Stammsitz Erkheim direkt an der Autobahn A 96 München-Lindau eingelegt. Sogar den Hüpftest hat man gemacht: „Unten im Haus darf nicht das Geschirr klappern, wenn ich oben hüpfe“, macht der Bauherr den Vergleich. „Baufritz ist eine tolle Truppe. Und arbeitet mit natürlichen Baustoffen, die für Mensch und Wohnen gut sind“, weiß Jansen auch aus seinem beruflichen Kontext.

Stichwort Altersvoraussicht: „Die Planer haben sehr konsequent umgesetzt, was wir wollen“
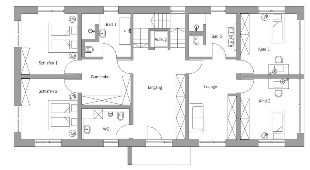
Weiteres Muss: die richtigen Proportionen, die richtigen Maße. Hatte das vorherige Haus einige Schwächen, war jetzt die Anforderung, lebensphasengerecht zu bauen: Der Kubus mit der Holzfassade in Vergrauungslasur mit der offenen Dachterrasse ist in zwei Wohneinheiten angelegt. Vier Schlafzimmer und zwei Badezimmer befinden sich im Erdgeschoss, das zur Südseite hin zum Anbau und damit Grundlage der Dachterrasse wird. Das Ehepaar Jansen bewohnt den Hausteil nach Norden, getrennt durch die Diele die erwachsenen Töchter den Hausteil nach Süden. „Unsere Töchter sollen immer gerne zu Besuch kommen“, fasst Jansen eigene Erfahrungen zusammen.
Weitere Überlegungen für das Wohnen im Alter: Auch eine Pflegekraft könnte irgendwann, ergänzt um eine Pantryküche, in dieser Haushälfte im Erdgeschoss wohnen, „jemand, der auf uns aufpasst“ – oder ein zweites Paar, mit dem man sich die Räume im Obergeschoss als „Rentner-WG“ teilt. Selbst eine separate Vermietung, mit Zugang von außen, anstelle des gemeinsamen Zugangs durch die Diele, ist denkbar. „Hier können wir sehr lange leben, auch im Alter.“ Ein Aufzug im Treppenauge ergänzt die Verbindung vom Kellergeschoss bis nach oben, will man nicht die als Podesttreppe angelegte Geschosstreppe mit Stufen aus amerikanischem Nussbaum und Treppenwangen aus Flachstahl nehmen. Sie führt vom Erdgeschoss ins lichtdurchflutete Dachgeschoss mit der elegant in Holz verkleideten, überhohen Decke und den offenen Koch-, Wohn-und Essbereich mit den wunderschönen Eschenholzdielen und den Baufritz-Einbaumöbeln. „Die sind ein Hingucker und erwecken bei Besuchern jedes Mal viel Aufsehen.“ Beide Giebel sind bis in den offenen Dachspitz mit Pfosten-Riegel-Konstruktionen verglast.
Nach Süden eröffnen die integrierten Hebe-Schiebetüren den Zugang auf die Terrasse unter dem großen Sonnensegel, uneinsehbar, mit ungestörtem Blick über die Gärten und Hecken, schon mit der ersten Tasse Kaffee am frühen Morgen. Der Profi-Küchenblock steht bewusst im Fokus des offenen Wohnens, denn die Wunsch-Küche war gewählt, bevor die Planung des Hauses stand. Kein Problem für den Baufritz-Architekten, der zudem eine Back Kitchen als Ergänzung untergebracht hat. Hier finden Backofen, Gefrierschrank, Dampfgarer, Spülmaschine etc. Platz. Architektonisch prägendes Gestaltungselement sind die Stahlunterzüge zur Lastabtragung der stützenfreien Dachpfette. Der komfortable Gaskamin für heimelige Tage ist nach drei Seiten verglast.




Vorausgedacht vom Keller bis in den Garten
Im Kellergeschoss befindet sich neben der Haustechnik und den Lagerräumen ein weiteres Badezimmer und eine Sauna, außerdem ein großzügiger Sportraum. Ein Lichtgraben bringt ausreichend Licht. „Wir brauchen Sport und Bewegung“, begründet der Bauherr, der sich auch über Sportarten im Alter viele Gedanken gemacht hat, das nächste Muss: einen Pool im Garten. Und hier war der Gartenplaner gefragt. Er hat einen Pflanzplan entwickelt, damit mit schnell wachsenden Hecken für Privatsphäre am Pool gesorgt ist.
Weitere Informationen zum Kundenhaus Jansen
Bilder: Bau-Fritz GmbH & Co. KG






